Get new listings emailed daily! JOIN SIGN IN
Bill Brittain
REALTOR®
(941) 518-4222
Facebook Icon LinkedIn Icon 
Refine Search
$4,985,000

400 Central Avenue Saint Petersburg, FL 33701 Residential - Condominium Active

  • 400 Central Avenue, Unit 4102, Saint Petersburg, FL 33701 Main Photo

16 Total Photos [Click to View All]

Description

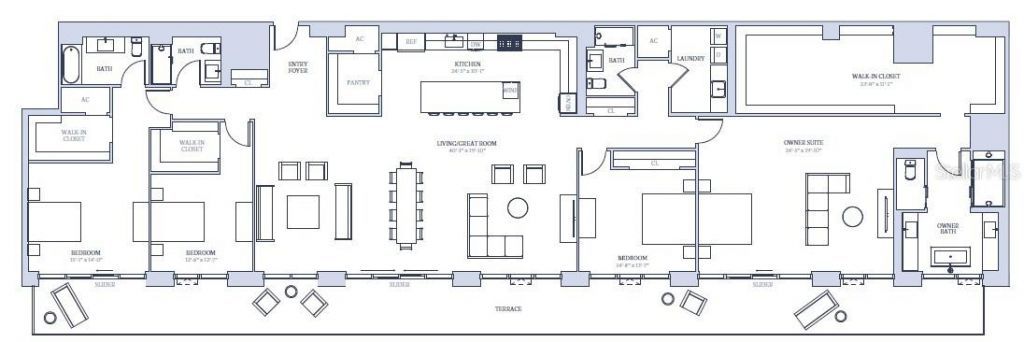
Discover the pinnacle of downtown St. Petersburg living in Penthouse 4102 at 400 Central. This extraordinary residence offers expansive floor-to-ceiling windows and soaring 11' ceilings that showcase breathtaking city and waterfront views. The open-concept design seamlessly blends living, dining, and entertaining spaces, featuring a chef's kitchen with premium appliances, spa-inspired bathrooms, and elegant custom finishes throughout. The luxurious primary suite is a true retreat, boasting a generous 33' x 11' walk-in closet ready to welcome the most curated of wardrobes. Step outside onto your 120' private terrace to entertain against the backdrop of stunning sunsets or enjoy a quiet moment above the city.Living at 400 Central means access to world-class amenities that elevate everyday life: a state-of-the-art fitness center, resort-style pool, sky lounge and landscaped rooftop terrace, private dining and event spaces, and 24-hour concierge service. From curated social experiences to the convenience of downtown St. Pete's finest dining, arts, and culture just steps away, Penthouse 4102 embodies the ultimate in modern luxury, comfort, and city lifestyle.

Property Highlights

Property Type: Residential - Condominium
Cooling: Central Air
Garage: 2
Heating: Central
Lot Size: 2.30 Acres
Roof Type: Membrane
Stories: 45.0
Taxes: $0
Year Built: 2021

General Information

Bedrooms: 4
Bathrooms: 4 Full
Sqft: 3,927
County: Pinellas
High School: St. Petersburg High-PN
Subdivision: 400 CENTRAL
Listed By:
Marijke White MICHAEL SAUNDERS & COMPANY 727-209-7848

Amenities

Living Room/Dining Room Combo
Open Floorplan
Primary Bedroom Main Floor
Stone Counters
Walk-In Closet(s)
Balcony
Dog Run
Lighting
Outdoor Grill
Outdoor Kitchen

Room Information

Living Room: 40x19.1
Kitchen: 24.5x10
Primary Bedroom: 24.5x19.1
Primary Bathroom: 11x12
Bedroom 1: 14.8x13.7
Bedroom 2: 12.8x12.7

Property Features

Appliances: Built-In Oven, Cooktop, Dishwasher, Dryer, Electric Water Heater, Freezer, Ice Maker, Microwave, Range, Refrigerator, Washer
Association Amenities: Elevator(s), Fitness Center, Pool, Recreation Facilities, Security, Spa/Hot Tub
Body of Water: TAMPA BAY; GULF OF MEXICO
Builder: Suffolk Construction
Community Features: Fitness Center, Pool
Condo Fee: $2839/ Monthly
Days on Site: 1
Directions: The Residences at 400 Central is located at 400 Central Avenue in St. Petersburg, FL - between 4th and 5th Streets. From 275 South bound, take exit 23A to 375 East and merge onto 4th Avenue N. Turn right onto 4th St N. then turn right on Central Avenue. T
Exterior: Block, Metal Frame, Stucco
Flood Zone Code: X
Flooring: Tile
Foundation: Slab
HOA Y/N: Yes
Home Warranty Y/N: No
Hot Tub: Yes
Lot Dimensions: 2.3
Number of Pets: 2
Ownership: Condominium
Parking: Assigned, Guest, Basement, Valet
Parking Notes: Assigned, Guest, Basement, Valet
Pets Allowed: Yes
Pets Weight (Max): 100
Pool: Heated, Lighting, Outside Bath Access
Property Attached Y/N: No
Property Sub-Type: Condominium
Security: Fire Alarm, Key Card Entry, Secured Garage/Parking, Smoke Detector(s)
Sewer: Public Sewer
Showing Instructions: Call Listing Agent, Call Listing Office
Special Sale Provisions: None
Utilities: Cable Connected, Electricity Connected, Natural Gas Available, Water Connected
Water: Public
Water Access Y/N: No
Water View: Bay/Harbor - Partial, Gulf/Ocean - Partial
Zoning: DC-C
$4,985,000
4beds
4.0baths
3,927sqft
2cars
New to the Market Active
BEDS4 BATHS4 full SQUARE FEET3,927 MLS#TB8486020
STATUSActive PROPERTY TYPEResidential - Condominium SUBDIVISION400 CENTRAL

Get in Touch

Contact an agent to learn more about

400 Central Avenue, Unit 4102, Saint Petersburg, FL 33701.

Contact Form

Preferred Communication Method:

Estimate Your Payment

Estimated Payment

$ 18,267.53 per month $16,813.57 Principal & Interest $0.00 Property Tax (data not provided by mls) $1,453.96 Homeowner's Insurance

Change Payment Information

%
years/fixed
yearly
yearly (est.)
(Payments are an estimate and may vary by lender)
Disclaimer: All information deemed reliable but not guaranteed. All properties are subject to prior sale, change or withdrawal. Neither listing broker(s) or information provider(s) shall be responsible for any typographical errors, misinformation, misprints and shall be held totally harmless. Listing(s) information is provided for consumers personal, non-commercial use and may not be used for any purpose other than to identify prospective properties consumers may be interested in purchasing. Information on this site was last updated 03/13/2026. The listing information on this page last changed on 03/13/2026. The data relating to real estate for sale on this website comes in part from the Internet Data Exchange program of Delta Media Group MLS (last updated Fri 03/13/2026 7:24:54 AM EST) or Stellar MLS (last updated Fri 03/13/2026 1:59:09 AM EST). Real estate listings held by brokerage firms other than Wagner Realty may be marked with the Internet Data Exchange logo and detailed information about those properties will include the name of the listing broker(s) when required by the MLS. All rights reserved.

Listing data and photos distributed by MLSGRID
Member Participants (and their affiliated licensees, if applicable) shall indicate on their websites that IDX information is provided exclusively for consumers’ personal non-commercial use, that it may not be used for any purpose other than to identify prospective properties consumers may be interested in purchasing, that the data is deemed reliable but is not guaranteed by MLS GRID, and that the use of the MLS GRID Data may be subject to an end user license agreement prescribed by the Member Participant’s applicable MLS if any and as amended from time to time. MLS GRID may, at its discretion, require use of other disclaimers as necessary to protect Member Participant, and/or their MLS from liability.
Based on information submitted to the MLS GRID. All data is obtained from various sources and may not have been verified by broker or MLS GRID. Supplied Open House Information is subject to change without notice. All information should be independently reviewed and verified for accuracy. Properties may or may not be listed by the office/agent presenting the information.



Privacy Policy / DMCA Notice / ADA Accessibility

Login to My Homefinder

Pixel