Get new listings emailed daily! JOIN SIGN IN
Bill Brittain
REALTOR®
(941) 518-4222
Facebook Icon LinkedIn Icon 
Refine Search
$278,965

7713 SW 46th Court Ocala, FL 34474 Residential - Single Family Active

  • 7713 SW 46th Court , Ocala, FL 34474 Main Photo

2 Total Photos [Click to View All]

Description

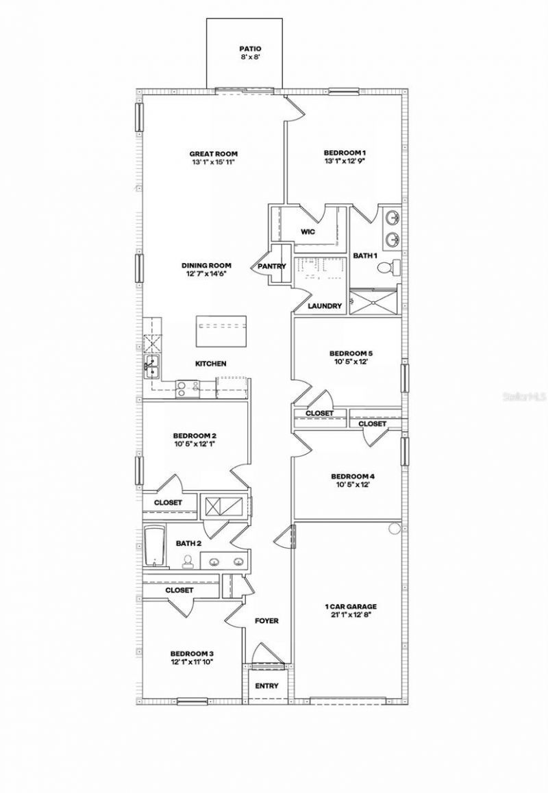
The Aflord floorplan is a thoughtfully designed single-story home featuring 5 bedrooms, 2 full bathrooms, and over 1,700 square feet of open-concept living space. This plan features a bright and airy layout that blends functionality with modern style. At the heart of the home, the kitchen impresses with sleek quartz countertops, a center island, and stainless-steel appliances, creating a stylish and functional space for cooking and entertaining. The adjoining dining and living areas open up to the outdoor patio. The Owner's Suite features a private ensuite bathroom, with a double vanity sink and large walk-in closet. The 4 additional bedrooms share the spacious second bathroom, also with a double vanity sink and quartz countertops. The dedicated laundry room is conveniently situated near the bedrooms and kitchen. The Alford is complete with a state-of-the-art smart home system that keeps you connected to your home at all times. Pictures, photographs, colors, features, and sizes are for illustration purposes only and will vary from the homes as built. Home and community information including pricing, included features, terms, availability and amenities are subjext to change and prior sale at any time without notice or obligation. CRC057592.

Property Highlights

Property Type: Residential - Single Family
Cooling: Central Air
Garage: 1 car attached
Heating: Electric, Heat Pump
Lot Size: 0.10 Acres
Roof Type: Shingle
Stories: 1.0
Taxes: $0
Year Built: 2026

General Information

Bedrooms: 5
Bathrooms: 2 Full
Sqft: 1,739
County: Marion
High School: West Port High School
Subdivision: DERBY CREEK
Listed By:
Jessica Cruz DR HORTON REALTY OF WEST CENTRAL FLORIDA 352-414-3365

Amenities

Open Floorplan

Room Information

Great Room: 13x15
Kitchen: 10x13
Primary Bedroom: 13x12
Balcony/Porch/Lanai: 8x8

Property Features

Appliances: Dishwasher, Microwave, Range
Builder: DR Horton INC
Directions: Heading south on I-75, take exit 350 towards Dunnellon and turn right at the intersection to merge onto SR-200. Travel on SR-200 for approx. 2.6 miles and turn left onto SW 66th Street. Travel straight for approx. 1.5 miles and turn right onto SW 49th Ave
Exterior: Block
Flood Zone Code: x
Flooring: Carpet, Luxury Vinyl
Foundation: Slab
HOA Fee: 51.2/ Monthly
HOA Y/N: Yes
Home Warranty Y/N: Yes
Lot Dimensions: 0.1
Model: Alford
Other Equipment: Irrigation Equipment
Ownership: Fee Simple
Pets Allowed: Yes
Pets Restrictions: Per HOA Guidelines
Property Attached Y/N: No
Property Sub-Type: Single Family Residence
Sewer: Public Sewer
Showing Instructions: Contact Call Center
Special Sale Provisions: None
Utilities: Other
Water: Public
Water Access Y/N: No
Zoning: PUD
$278,965
5beds
2.0baths
1,739sqft
1cars
New to the Market Active
BEDS5 BATHS2 full SQUARE FEET1,739 MLS#OM720679
STATUSActive PROPERTY TYPEResidential - Single Family SUBDIVISIONDERBY CREEK

Get in Touch

Contact an agent to learn more about

7713 SW 46th Court , Ocala, FL 34474.

Contact Form

Preferred Communication Method:

Estimate Your Payment

Estimated Payment

$ 1,022.27 per month $940.90 Principal & Interest $0.00 Property Tax (data not provided by mls) $81.36 Homeowner's Insurance

Change Payment Information

%
years/fixed
yearly
yearly (est.)
(Payments are an estimate and may vary by lender)
Disclaimer: All information deemed reliable but not guaranteed. All properties are subject to prior sale, change or withdrawal. Neither listing broker(s) or information provider(s) shall be responsible for any typographical errors, misinformation, misprints and shall be held totally harmless. Listing(s) information is provided for consumers personal, non-commercial use and may not be used for any purpose other than to identify prospective properties consumers may be interested in purchasing. Information on this site was last updated 03/14/2026. The listing information on this page last changed on 03/14/2026. The data relating to real estate for sale on this website comes in part from the Internet Data Exchange program of Delta Media Group MLS (last updated Sat 03/14/2026 12:17:10 AM EST) or Stellar MLS (last updated Fri 03/13/2026 11:59:09 PM EST). Real estate listings held by brokerage firms other than Wagner Realty may be marked with the Internet Data Exchange logo and detailed information about those properties will include the name of the listing broker(s) when required by the MLS. All rights reserved.

Listing data and photos distributed by MLSGRID
Member Participants (and their affiliated licensees, if applicable) shall indicate on their websites that IDX information is provided exclusively for consumers’ personal non-commercial use, that it may not be used for any purpose other than to identify prospective properties consumers may be interested in purchasing, that the data is deemed reliable but is not guaranteed by MLS GRID, and that the use of the MLS GRID Data may be subject to an end user license agreement prescribed by the Member Participant’s applicable MLS if any and as amended from time to time. MLS GRID may, at its discretion, require use of other disclaimers as necessary to protect Member Participant, and/or their MLS from liability.
Based on information submitted to the MLS GRID. All data is obtained from various sources and may not have been verified by broker or MLS GRID. Supplied Open House Information is subject to change without notice. All information should be independently reviewed and verified for accuracy. Properties may or may not be listed by the office/agent presenting the information.



Privacy Policy / DMCA Notice / ADA Accessibility

Login to My Homefinder

Pixel