Get new listings emailed daily! JOIN SIGN IN
Bill Brittain
REALTOR®
(941) 518-4222
Facebook Icon LinkedIn Icon 
$429,000

907 E 26th Avenue Tampa, FL 33605 Residential - Single Family Active

  • 907 E 26th Avenue , Tampa, FL 33605 Main Photo

2 Total Photos [Click to View All]

Description

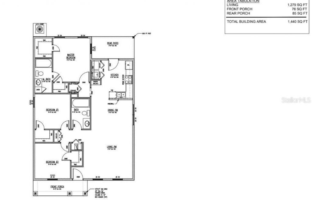
Under Construction. Brand-new 3 bedroom, 2 bath home in the heart of Tampa's fast-growing VM Ybor district. This 1,279 sq ft home features an open living and dining area, a modern kitchen, a private primary suite, and two well-sized secondary bedrooms. Enjoy a covered front porch, rear patio, energy-efficient construction, and no HOA or CDD fees.Located minutes from Ybor City, Downtown Tampa, Water Street, Channelside, Armature Works, and major highways, this home offers unbeatable access to Tampa's best dining, entertainment, and commuter routes. A great opportunity for homeowners or investors looking for new construction in a rapidly developing area.

Property Highlights

Property Type: Residential - Single Family
Cooling: Central Air
Heating: Central
Lot Size: 0.15 Acres
Roof Type: Shingle
Stories: 1.0
Taxes: $1,521
Year Built: 2025

General Information

Bedrooms: 3
Bathrooms: 2 Full
Sqft: 1,279
County: Hillsborough
Subdivision: BELVEDERE PLACE
Listed By:
DJ Delgado DJ DELGADO MANAGEMENT GROUP 863-258-8288

Amenities

Ceiling Fans(s)
Open Floorplan
None

Property Features

Appliances: Dishwasher, Range, Refrigerator
Builder: Coastal Pointe Construction LLC
Days on Site: 1
Directions: Take Nebraska Avenue north, turn right onto E Columbus Drive, then turn left onto N 10th Street. Turn right onto E 26th Avenue; the home will be on your right.
Exterior: HardiPlank Type
Flood Zone Code: X
Flooring: Luxury Vinyl
Foundation: Block, Slab
Home Warranty Y/N: No
Listing Terms: Cash, Conventional, FHA, Lease Option, Lease Purchase, Owner Financing, VA Loan
Lot Dimensions: 0.15
Model: El Sueno
Other Equipment: None
Ownership: Fee Simple
Property Attached Y/N: No
Property Sub-Type: Single Family Residence
Sewer: Public Sewer
Showing Instructions: Appointment Only
Special Sale Provisions: None
Utilities: Public
Water: Public
Water Access Y/N: No
Zoning: RS-50
$429,000
3beds
2.0baths
1,279sqft
New to the Market Active
BEDS3 BATHS2 full SQUARE FEET1,279 MLS#L4960206
STATUSActive PROPERTY TYPEResidential - Single Family SUBDIVISIONBELVEDERE PLACE

Get in Touch

Contact an agent to learn more about

907 E 26th Avenue , Tampa, FL 33605.

Contact Form

Preferred Communication Method:

Estimate Your Payment

Estimated Payment

$ 1,698.82 per month $1,446.95 Principal & Interest $126.75 Property Tax $125.13 Homeowner's Insurance

Change Payment Information

%
years/fixed
yearly
yearly (est.)
(Payments are an estimate and may vary by lender)
Disclaimer: All information deemed reliable but not guaranteed. All properties are subject to prior sale, change or withdrawal. Neither listing broker(s) or information provider(s) shall be responsible for any typographical errors, misinformation, misprints and shall be held totally harmless. Listing(s) information is provided for consumers personal, non-commercial use and may not be used for any purpose other than to identify prospective properties consumers may be interested in purchasing. Information on this site was last updated 03/14/2026. The listing information on this page last changed on 03/14/2026. The data relating to real estate for sale on this website comes in part from the Internet Data Exchange program of Delta Media Group MLS (last updated Sat 03/14/2026 12:17:10 AM EST) or Stellar MLS (last updated Fri 03/13/2026 11:59:09 PM EST). Real estate listings held by brokerage firms other than Wagner Realty may be marked with the Internet Data Exchange logo and detailed information about those properties will include the name of the listing broker(s) when required by the MLS. All rights reserved.

Listing data and photos distributed by MLSGRID
Member Participants (and their affiliated licensees, if applicable) shall indicate on their websites that IDX information is provided exclusively for consumers’ personal non-commercial use, that it may not be used for any purpose other than to identify prospective properties consumers may be interested in purchasing, that the data is deemed reliable but is not guaranteed by MLS GRID, and that the use of the MLS GRID Data may be subject to an end user license agreement prescribed by the Member Participant’s applicable MLS if any and as amended from time to time. MLS GRID may, at its discretion, require use of other disclaimers as necessary to protect Member Participant, and/or their MLS from liability.
Based on information submitted to the MLS GRID. All data is obtained from various sources and may not have been verified by broker or MLS GRID. Supplied Open House Information is subject to change without notice. All information should be independently reviewed and verified for accuracy. Properties may or may not be listed by the office/agent presenting the information.



Privacy Policy / DMCA Notice / ADA Accessibility

Login to My Homefinder

Pixel